Насадки на бензопилу: бур, лебедка, болгарка, дровокол
Насадка болгарка — используя такую насадку, бензопилой можно легко резать металл и камень. Это очень удобное приспособление, которое сэкономит немало финансовых средств. Там где нет электричества, но очень нужно поработать болгаркой, насадка болгарка на бензопилу будет просто незаменимой.

При осуществлении выбора насадки в виде болгарки на бензопилу, очень важно подбирать её к какой-то конкретной модели бензоинструмента. Также нужно понимать, что подобного рода насадки способны создавать излишнюю нагрузку на бензопилу, поэтому с ними нужно уметь работать
Насадка лебедка — если вы часто путешествуете на своем внедорожнике или вам нужно оттащить спиленное дерево, вытащить что-либо большое и тяжелое, то насадке в виде лебедки, очень даже пригодится. Такая лебедка на бензопилу имеет достаточно большое тяговое усилие (3 тонны и выше), она может быть различной длины, от 10 метров и более.

В свою очередь, имея достаточно простую и надежную конструкцию, лебедка на бензопилу станет незаменимым помощником в дороге. Подсоединяется она вместо штатной шины бензопилы, используя для передачи крутящего момента, цепную передачу
При выборе лебедки, также очень важно придерживаться какой-то конкретной модели бензопилы. В противном случае, насадка может к ней не подойти или будет работать в половину своей эффективности
Насадки мотобур и дровокол
Насадка дровокол — просто идеальное приспособление для колки дров в домашних условиях. Используя бензопилу с насадкой дровокол, можно расколоть большие в диаметре поленья, 40 см и более. Теперь нет нужды мастерить самодельный дровокол для этих целей или покупать его в магазине. Простое, но эффективное приспособление, поможет быстро заготовить большое количество дров на зиму.

Состоит насадка дровокол для бензопилы из конусообразного штыря с мелкозаглубленной резьбой. При вращении штырь ввинчивается в полено, создавая тем самым, нагрузку внутри него, из-за которой и происходит быстрая колка дров
Осуществляя выбор насадки дровокола для бензопилы, так же, как и в предыдущих двух случаях, очень важно учитывать какую-то конкретную модель бензоинструмента
Насадка мотобур — очень популярная насадка, которая позволит превратить даже самую маломощную бензопилу в настоящий мотобур. Данная насадка станет отличным помощником при сверлении лунок во льду и отверстий под установку столбов забора
Диаметр насадки может быть разным, 35 см и более, поэтому данный параметр очень важно учитывать при выборе

Это далеко не все насадки на бензопилу, которые можно встретить на строительных рынках и в магазинах. Тем не менее, эти четыре насадки пользуются наибольшей популярностью. Ниже в статье будут рассмотрены основные критерии их выбора.
На что смотреть при выборе насадки для бензопилы
В первую очередь нужно обращать внимание на материал изготовления насадки. Самыми прочными и надежными, признаны насадки из стали, они достаточно долговечны и обладают большой износостойкостью
Не менее важный критерий, это качество исполнения насадки, отсутствия люфтов и т. д. Выбираемая насадка для бензопилы должна иметь правильную геометрию и абсолютно подходить к какой-то конкретной её модели. Поэтому прежде чем купить насадку, её нужно проверить в работе, поставить на бензопилу, и убедиться в полной совместимости с ней.

Также при выборе насадки следует учитывать её скорость вращения и нагрузку, которую она будет создавать на двигатель бензопилы. Наиболее тяжелыми для работы бензопил считаются насадки в виде лодочного мотора, буры и болгарки. Они должны быть подобраны в соответствии с мощностью двигателя бензопилы, в противном случае, мотор может быстро выйти из строя и уже без капитального ремонта не обойтись.
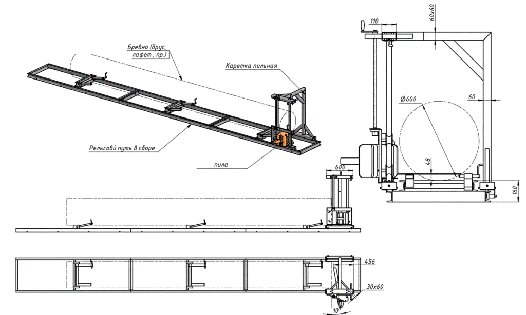
Стационарная циркулярка
Использовать болгарку в качестве рабочего механизма можно и стационарных условиях. Станина в этом случае будет иметь немного другую конструкцию. Стационарный вариант подразумевает наличие свободной площади и большого объема работ. Поэтому всю конструкцию можно сделать основательнее, массивнее, а, значит, надежнее.
Каркас станины можно сделать из уголка сварным соединением. Болтовые и другие виды разъемных креплений от постоянной вибрации теряют сцепление, конструкция начинает шататься.

Сверху металлического каркаса крепится рабочий стол из широкой доски или толстой фанеры. По нему будет передвигаться обрабатываемая деталь. Упорный уголок снабжен подвижным креплением для регулировки ширины распила.
Сбоку станка расположены органы управления: розетка и кнопки включения-отключения. В стационарном варианте клавишу на корпусе болгарки имеет смысл исключить из схемы. При наличии достаточного места в качестве привода можно применить шлифмашинку большой мощности.
О том, как сделать пилораму из болгарки, показано в этом видео:
Бензопилы и электропилы из болгарки. Насадки, самоделки, переделки. Советы и инструкции
Бензопила из болгарки: насадки, самоделки, переделки
Желание усовершенствовать уже имеющийся инструмент приходит неспроста. Главной целью такого эксперимента является экономия средств. И действительно, зачем покупать несколько инструментов, если можно использовать различные насадки и сделать многофункциональный инструмент.

Болгарка известна каждому хозяйственному домовладельцу, потому как с ее помощью можно и металл порезать, и камень, и отшлифовать поверхность. Но деревья таким устройством не распилишь, возникают сложности из-за маленького диаметра диска. Вот и придумывают умельцы различные насадки, которые значительно облегчают работу в саду.
Для чего прибегают к самодельному варианту?
Зачастую, именно самодельные варианты инструментов или совершенствование уже имеющихся делается из-за желания сэкономить деньги. Используя подручные средства и детали, которые остались от пришедшего в негодность оборудования или техники, умельцы мастерски изготавливают различные приспособления, такие как, например, цепная бензопила из болгарки.

Второй причиной можно считать желание иметь у себя многофункциональный инструмент, который поможет облегчить многочисленные задачи в хозяйстве. Неоспоримым достоинством такого самодельного аппарата является экономия места. Ведь дополнительная насадка занимает гораздо меньше места в сарае или гараже, чем полноценный аппарат.
Для переделки можно использовать абсолютно любую марку болгарки
Единственным моментом, на который стоит обратить внимание, это то, что заводские насадки могут подходить только ограниченному ряду моделей, поэтому при покупке, обязательно уточните, подходит ли ваша болгарка для выбранной насадки
Заводские насадки
Сейчас в продаже существуют специальные насадки на болгарку помимо дисков. В комплекте к болгарке идет приспособление, с помощью которого за короткое время ее можно превратить в цепную пилу. Поставляется в двух отдельных коробках, где упакована болгарки и цепная пила.

Набор насадок
Электропила из болгарки
Каждому, кто сталкивался с работой с деревом, необходимо иметь в арсенале инструментов пилу, с помощью которой гораздо легче осуществлять распилочные работы. Ниже представлена схема переделки электропилы, которую можно сделать из болгарки

Переделка цепной пилы
Для того, чтобы переделать болгарку в электрическую пилу необходимо при себе иметь:
- Аппарат для сварки;
 - Переходник для фрез;
 - Небольшой по толщине ролик из металла;
 - Редуктор;
 - Пильная часть.
 
Первое, что надо сделать, это в конце стрелы приварить подвижное колесо
Очень важно сделать так, чтобы это колесо и контур были с одинаковым контуром. Если этот нюанс не учесть, то цепь будет спадать либо сильно натягиваться
После этого к колесу крепится переходник для фрез. Не следует крепить переходник стационарно, он должен быть съемным, потому что в противном случае могут возникнуть затруднения во время работы.
Простым и надежным вариантом переделки является следующий способ. Берем шину от старой бензопилы, звездочку и цепь. Два перфорированных уголка скручиваются между собой. В одном прорезать отверстие под гайку. К нему мы прикрепим звездочку, причем так, чтобы была возможность прикрепить уголок на кожухе.
К оставшемуся уголку прикрепляем шину. После этого крепим звездочку и подсоединяем цепь. Вот и все манипуляции, в результате которых получаем эффективную пилу.
Видео обзоры
В представленном видео обзоре рассказывается, как сделать цепную электропилу из болгарки
Еще один наглядный видео обзор, демонстрирующий самоделку
Советы и рекомендации
Основным советом, которым не стоит пренебрегать, является соблюдение техники безопасности при работе с подобными инструментами. Цепная бензопила или электропила в самодельной интерпретации могут быть опасны и травматичны. Если решились на такой шаг, то следуйте всем рекомендациям, чертежам и схемам, которые указаны в инструкции к адаптеру.
Готовая насадка — болгарка для бензопилы
Сегодня, насадку на бензопилу, в том числе и типа «болгарка», без проблем можно купить в любом магазине бензоинструмента. С установкой тоже не возникает проблем, т. к. вместе с ней поставляется подробная инструкция, изучив которую можно своими руками установить болгарку на бензопилу, за исключением тех случаев, когда насадка выбрана неправильно.
Важно: насадка — болгарка не универсальная, её нужно выбирать под конкретную модель бензопилы. Производители насадок не указывают в документах полный перечень моделей бензопил, для которых она предназначена, что затрудняет правильный выбор
Как выбрать болгарку на бензопилу
При выборе насадки для вашего инструмента, в первую очередь, необходимо ознакомиться с её технической документацией. Если в списке бензопил, для которых она предназначена, ваша модель не указана, это еще не значит, что на неё нельзя установить насадку УШМ.
Для проверки совместимости, необходимо сравнить диаметр коленчатого вала бензопилы с диаметром посадочного отверстия на шкиве из комплекта насадки (потребуется снять сцепление с бензопилы).
Ведущий шкив насадки может иметь несколько видов, подробнее о видах поговорим чуть позже. При выборе, необходимо, чтобы вид ведущей звездочки бензопилы и шкива насадки совпадали, в противном случае установить шкив вместо сцепления не представляется возможным.
Виды шкивов насадки — болгарки
Официальной классификации шкивов и сцеплений бензопилы по видам нет, но было бы удобнее, если бы она была. Мы постараемся объяснить отличия шкивов понятным языком и покажем фотографии.
Шкив типа «Штиль 180» — закрытая чашка для установки на штатное место, вместо сцепления, совмещенная со шкивом. Шкив неразборный, диаметр посадочного отверстия соответствует диаметру коленчатого вала с установленным на него игольчатым подшипником. Используется в бензопилах Штиль МС 180, 170, 250.
Шкив без чашки, устанавливаемый на ведущую звездочку бензопилы, без снятия сцепления. Может иметь несколько вариантов, в зависимости от шага звездочки. Преимущество такого типа — простота монтажа (для Штиль МС 180 с закрытой чашкой сцепления, в тех бензопилах, где сцепление открытое, для установки потребуется его снять) и низкая стоимость (могут продаваться отдельно, как запасные детали). Такой шкив более универсальный, может использоваться в бензопилах Хускварна, Партнер, Тайга и других китайских аналогах.
Для сцеплений, в которых предусмотрена возможность замены ведущей звездочки, чаще всего такие устанавливаются на профессиональные бензопилы, производители делают специальные шкивы. К сожалению фотографии шкива с таким посадочным мы не нашли, но есть фото сцепления и сменного звена, посмотрев которые можно понять, как он выглядит.
Мы рассмотрели самые популярные модели шкивов, но это далеко не все, что может встретиться в продаже.
Теперь предлагаем вам посмотреть видео, в котором мастер показывает и объясняет, как из бензопилы сделать болгарку при помощи покупной насадки. Кстати, в этом видео используется малораспространенный и дорогой шкив, его можно было заменить шкивом без чашки, про который мы рассказывали выше.
Установка на бензопилу своими руками
Как установить насадку — болгарку на бензопилу знает не каждый, поэтому мы расскажем об этом подробнее.
Работу по установке, следует начать, как ни странно, с очистки бензопилы. Необходимо снять боковую крышку, шину, цепь и продуть бензопилу сжатым воздухом, под боковой крышкой спрессовываются и накапливаются мелкие частички древесины, которые при разборке сцепления могут попасть в подшипник.
Далее, необходимо выкрутить свечу и ограничить ход поршня при помощи куска не толстой и плотной веревки, с навязанными на неё узелками. Для этого веревку нужно просунуть в цилиндр через свечное отверстие. Эти манипуляции нужны для того, чтобы максимально безопасно заблокировать ход поршня, а соответственно и коленчатого вала и открутить сцепление.
Далее, чашка сцепления снимается с коленчатого вала и в зависимости от вида шкива насадки, либо меняется, либо на неё устанавливается шкив вместо ведущей звездочки. Сборка проводится в обратной последовательности.
Теперь переходим к установке самой насадки — болгарка. Она монтируется на место штатной шины, ничего сложного, просто необходимо установить насадку на два винта крепления, закрыть боковую крышку и затянуть винтами.
На завершающем этапе производится натяжение ремня. Как проверить натяжение мы описывали выше.
Готовая насадка — болгарка для бензопилы
Сегодня, насадку на бензопилу, в том числе и типа «болгарка», без проблем можно купить в любом магазине бензоинструмента. С установкой тоже не возникает проблем, т. к. вместе с ней поставляется подробная инструкция, изучив которую можно своими руками установить болгарку на бензопилу, за исключением тех случаев, когда насадка выбрана неправильно.
Важно: насадка — болгарка не универсальная, её нужно выбирать под конкретную модель бензопилы. Производители насадок не указывают в документах полный перечень моделей бензопил, для которых она предназначена, что затрудняет правильный выбор
Как выбрать болгарку на бензопилу
При выборе насадки для вашего инструмента, в первую очередь, необходимо ознакомиться с её технической документацией. Если в списке бензопил, для которых она предназначена, ваша модель не указана, это еще не значит, что на неё нельзя установить насадку УШМ.
Для проверки совместимости, необходимо сравнить диаметр коленчатого вала бензопилы с диаметром посадочного отверстия на шкиве из комплекта насадки (потребуется снять сцепление с бензопилы).
Ведущий шкив насадки может иметь несколько видов, подробнее о видах поговорим чуть позже. При выборе, необходимо, чтобы вид ведущей звездочки бензопилы и шкива насадки совпадали, в противном случае установить шкив вместо сцепления не представляется возможным.
Виды шкивов насадки — болгарки
Официальной классификации шкивов и сцеплений бензопилы по видам нет, но было бы удобнее, если бы она была. Мы постараемся объяснить отличия шкивов понятным языком и покажем фотографии.
Шкив типа «Штиль 180» — закрытая чашка для установки на штатное место, вместо сцепления, совмещенная со шкивом. Шкив неразборный, диаметр посадочного отверстия соответствует диаметру коленчатого вала с установленным на него игольчатым подшипником. Используется в бензопилах Штиль МС 180, 170, 250.
Шкив без чашки, устанавливаемый на ведущую звездочку бензопилы, без снятия сцепления. Может иметь несколько вариантов, в зависимости от шага звездочки. Преимущество такого типа — простота монтажа (для Штиль МС 180 с закрытой чашкой сцепления, в тех бензопилах, где сцепление открытое, для установки потребуется его снять) и низкая стоимость (могут продаваться отдельно, как запасные детали). Такой шкив более универсальный, может использоваться в бензопилах Хускварна, Партнер, Тайга и других китайских аналогах.
Для сцеплений, в которых предусмотрена возможность замены ведущей звездочки, чаще всего такие устанавливаются на профессиональные бензопилы, производители делают специальные шкивы. К сожалению фотографии шкива с таким посадочным мы не нашли, но есть фото сцепления и сменного звена, посмотрев которые можно понять, как он выглядит.
Мы рассмотрели самые популярные модели шкивов, но это далеко не все, что может встретиться в продаже.
Теперь предлагаем вам посмотреть видео, в котором мастер показывает и объясняет, как из бензопилы сделать болгарку при помощи покупной насадки. Кстати, в этом видео используется малораспространенный и дорогой шкив, его можно было заменить шкивом без чашки, про который мы рассказывали выше.
Установка на бензопилу своими руками
Как установить насадку — болгарку на бензопилу знает не каждый, поэтому мы расскажем об этом подробнее.
Работу по установке, следует начать, как ни странно, с очистки бензопилы. Необходимо снять боковую крышку, шину, цепь и продуть бензопилу сжатым воздухом, под боковой крышкой спрессовываются и накапливаются мелкие частички древесины, которые при разборке сцепления могут попасть в подшипник.
Далее, необходимо выкрутить свечу и ограничить ход поршня при помощи куска не толстой и плотной веревки, с навязанными на неё узелками. Для этого веревку нужно просунуть в цилиндр через свечное отверстие. Эти манипуляции нужны для того, чтобы максимально безопасно заблокировать ход поршня, а соответственно и коленчатого вала и открутить сцепление.
Далее, чашка сцепления снимается с коленчатого вала и в зависимости от вида шкива насадки, либо меняется, либо на неё устанавливается шкив вместо ведущей звездочки. Сборка проводится в обратной последовательности.
Теперь переходим к установке самой насадки — болгарка. Она монтируется на место штатной шины, ничего сложного, просто необходимо установить насадку на два винта крепления, закрыть боковую крышку и затянуть винтами.
На завершающем этапе производится натяжение ремня. Как проверить натяжение мы описывали выше.
Бурильное и компрессорное оборудование
Простая по конструкции и удобная в работе насадка ледобур в зимнее время используется в рыбоводческих хозяйствах для подачи воздуха в замерзшие водоемы. Эффективность применения комбинированного оборудования подтвердилась на практике.
Легкий, компактный и достаточно производительный ледовый бур — входит в комплект оборудования для зимней любительской рыбалки. В результате естественного отбора стабилизировался высокий спрос на наиболее удачные разработки.
В частности, отличными эксплуатационными свойствами характеризуется мотобур МБ-2 Лёд. Насадка приводится в действие через понижающий редуктор, уменьшающий скорость вращения вала до 150 об/мин. Эта модель отличается от однотипных аналогов, минимальным временем установки, в пределах от 5 до 10 минут.
Сменная насадка компрессор по рабочим параметрам уступает многим мобильным агрегатам бытового класса. Тем не менее, для аэрации небольших зарыбленных водоемов, работы пневматических краскораспилителей и опрыскивателей ее производительности хватает с запасом.
Плюсы и минусы решения
Для изготовления болгарки подходят разные виды ручных электрических и бензиновых инструментов. Самый простой и удобный вариант — это устройство, собранное на основе пилы с цепью. Преимущества самодельных устройств:
- Большая мощность. Если сравнивать самодельную насадку с заводскими моделями, то ее мощность в 2 раза больше.
 - Независимость. Инструмент не нуждается в электроэнергии, поэтому его можно применять в любом месте.
 - Простая сборка. Все необходимые инструменты и материалы можно приобрести в магазине или поискать в своем хозяйстве.
 - Доступная цена. Если сравнивать с готовым инструментом, то на сборку болгарки понадобится в 2 раза меньше денежных средств.
 
Несмотря на все свои достоинства, инструмент имеет ряд недостатков. Аэрофильтры болгарки засоряются металлической пылью. Из-за этого двигатель постепенно глохнет и выходит из строя. Также человек может получить травму от использования болгарки. Иногда во время работы диски не выдерживают нагрузки и лопаются. Под воздействием тяги они разлетаются в стороны. Чтобы защитить себя от травм, нужно выбирать диски до 115 мм в диаметре и применять защитный кожух.
- https://benzopilok.ru/samodelki/bolgarka-iz-benzopily.html
 - https://proogorod.com/selhoztekhnika/bolgarka-iz-benzopily
 - https://specmahina.ru/benzopila/bolgarka-iz-benzopily.html
 
Особенности
Сразу стоит учесть: все эксперименты с УШМ должны проводить только основательно разбирающиеся в этой технике люди. В противном случае последствия могут оказаться непредсказуемыми (и едва ли приятными для «изобретателей»). Чтобы использовать шлифовальную машину для пиления, понадобятся обязательно специальная рукоять, защитное устройство и диск особого вида. Типичная цепная насадка-пила на болгарку включает:
- шину, крепящуюся к инструменту;
 - рукоять;
 - звездочку, насаживаемую на вал;
 - комплект крепежных изделий и инструментов для работы с ними;
 - изолирующий пользователя щиток.
 
Как сделать самостоятельно
Если нет возможности приобрести заводскую насадку, то можно самостоятельно сделать из пилы резак. Для изготовления болгарки из бензопилы своими руками понадобятся следующие инструменты и материалы:

- рабочий модуль (болгарки);
 - профессиональная пила с высокой мощностью;
 - заводские шины — 3 шт. (40-50 см);
 - барабан — 2 шт.;
 - ремень.
 
Инструкция самостоятельной сборки устройства:
- Ремень прокладывают вдоль шины.
 - К ведущей звездочке прикрепляют шкив, предварительно установив его на пилу.
 - Зубчатое колесо, расположенное на узле болгарки, протачивают и убирают.
 - Шкив собирают, придерживаясь схемы, и сваркой закрепляют его на основе.
 - Чтобы ремень работал беспрепятственно, укорачивают 2 направляющие. Заточку 1 шины проводят под монтаж узла болгарки и приваривают их к основанию.
 - Затем устанавливают шлифовочные круги.
 
Сделать из бензопилы болгарку несложно, если использовать чертежи и придерживаться инструкции по изготовлению.
Советы по использованию фрезы для болгарки
Пильный круг с элементами цепи бензопилы позволяет распиливать доски, толщина которых не превышает 40 мм, при этом важно соблюдать особую осторожность. Нарушение правил может привести к травматизации:
- Защитные чехлы на инструменте снимать запрещается. При большом диаметре дисков, превышающих размеры кожуха, болгарку использовать нельзя.
 - Работать угловой шлифовальной машинкой необходимо с соблюдением оборотов, которые указаны на режущем инструменте. При их превышении цепь может соскользнуть, что приведет к разлету ее составляющих частей.
 - Наличие защитных очков и плотных рукавиц обязательно. Также рекомендуется работать в плотной брезентовой одежде.
 
Работать болгаркой с установленными дискам, которые предназначены для циркулярки — запрещается. Поскольку это несет угрозу здоровью и жизни человека.

Также данный запрет касается алмазных отрезных дисков для бетона. Для работы с деревянными изделиями они небезопасны, поскольку не предназначены для этого. Показатель эффективности от их использования довольно низкий, если учесть стоимость дисков. А также есть вероятность обуглить изделие и попросту испортить его.
С таким диском для болгарки, который представлен на рисунке ниже, следует работать максимально осторожно при обработке деревянных материалов. В его конструкции предусмотрена защита, исключающая заклинивание боковых зубьев, способствующих расширению ширины распила
У диска диаметр составляет 115 мм, а благодаря его габаритам можно работать с установленным защитным кожухом.

Некоторыми доморощенными «мастерами» практикуется подгон стандартных пильных дисков для циркулярной пилы под угловую шлифовальную машину. Всю работу производят со снятыми защитными чехлами. Зачастую финал у таких экспериментов довольно трагический. Горе-мастера получают серьезные травмы, которые несут угрозу жизни.
Но несмотря на это, строительные рынки полны предложениями, которые позволяют приобрести диск на болгарку по дереву. Неопытные мастера убеждаются продавцами, что при правильном использовании таких инструментов не существует никаких рисков. Все это верно, ровно до того момента, пока не случилось ничего плохого.
Никакие профессиональные магазины никогда не продадут человеку диск для болгарки, который может быть также пригоден для работы с циркуляркой. За такие продажи, в случае получения травмы покупателем, продавца могут привлечь к уголовной ответственности.
Перечень основных причины, ввиду которых использование циркулярной пилы для работы с болгаркой недопустимо:
- диски рассчитаны на работу с невысокими оборотами, материал такой фрезы является довольно хрупким. В процессе работы существует вероятность разлета инструмента на мелкие части или же откол напаянных на диске зубьев, которые отлетают на огромной скорости;
 - у дерева довольно вязкая структура, в связи с этим вгрызание зубьев происходит неравномерным образом, что приводит к вибрациям и подвижности инструмента. Это может привести к потере контроля над УШМ и повлечь за собой серьезную травму;
 - возникает заклинивание дисков во время рабочего процесса при обработке дерева, инструмент может вырвать из рук. Учтите, что включенный инструмент с вращающимся диском непредсказуем.
 - неравномерные нагрузки, вызванные работой по деревянной поверхности могут привести к перегреву электроинструмента, что приведет к его поломке.
 
Оптимальным решением является изготовление стационарного распилочного станка, на котором болгарка будет надежно закреплена. Сделать циркулярный станок из болгарки абсолютно несложно, необходимо подготовить только основные комплектующие для данного оборудования. Но это однозначно стоит того, вы не только сократите время на обработку изделий, но и обезопасите себя от плохих последствий.
Сложности и ограничения
Насадка-болгарка для бензопилы ставит перед пользователями ряд проблем:
- Как предохранить движущиеся части от мелкой стальной или каменной пыли, образующейся во время резки?
 - Как выбрать характеристики отрезного круга?
 - Можно ли устанавливать одну насадку на бензопилы от разных производителей?
 
Наличие эффективных воздушных фильтров для работы с указанными типами насадок признают все. Дело в том, что при разделении веществ, имеющих мелкозернистую структуру, выделяется значительное количество мелких частиц стружки, с которыми штатные фильтры бензопил справиться не смогут.
Стоит рассмотреть две разновидности фильтров. Бензопилы китайского производства (торговая марка Partner) оснащаются стандартными одноступенчатыми фильтрами, которые забьются весьма быстро. Производители более высокой ценовой категории (Штиль, Хускварна) комплектуют сою продукцию двух- и трёхступенчатыми фильтрами, которые способны последовательно задерживать частицы с разными размерами. Долговечность работы двигателя бензопилы в таких условиях заметно возрастает. Поэтому устанавливать УШМ-насадку на бензопилу лучше всего для моделей, которые имеют в своей конструкции три последовательно расположенных очистных фильтра: поролоновый, бумажный, нейлоновый. Они трудно повреждаются стальной стружкой, и смогут обеспечить нормальную работу привода устройства.
Эксперты советуют дооборудовать пилы стандартными воздухоочистительными фильтрами от легковых автомобилей-внедорожников, которые эффективно справляются с мелкодисперсными частицами любой плотности.
Вторая опасность связана с использованием пильных дисков, которые не рассчитаны на высокооборотистые двигатели бензопил. На этом настаивают производители пил Хускварна. Действительно, отрезные диски могут разлетаться от превышения центробежных сил, при этом возможны тяжёлые травмы пользователей. Опасность увеличивается при длительном режиме работы с такой насадкой: от перегрузки элементов привода могут возникнуть вибрации, на которые пильный диск не рассчитан. Поэтому требуется:
- Ограничивать число оборотов двигателя бензопилы;
 - Использовать только диски, рассчитанные на повышенные скорости вращения;
 - Работать только с защитным кожухом;
 - Использовать модели инструмента, в которых имеется функция защиты от обратного удара (в конструкции должен присутствовать инерционный тормоз).
 
Подведём итоги. Насадка-болгарка для бензопилы – полезное и необходимое во многих случаях приспособление. При наличии вышерассмотренных ограничений такое устройство вполне допустимо устанавливать на бензопилы определённых характеристик, с применением только подходящих для этих целей отрезных кругов. Цена конструкций вполне доступна – от 1400…1500 руб. — для пил Хускварна, до 2200…2300 руб. – для пил от Штиль.
Редуктор для кислородного баллона. Устройство и принцип работы
Рычажная лебёдка. Пробуем вытащить автомобиль
Особенности создания самоделок из бензопилы «Урал»
Используйте насадку, следуя всем правилам техники безопасности. В теории это понимают все, а на практике многие правилами пренебрегают, что приводит к травмам
Обратите внимание на необходимость:
- защитить глаза очками и руки защитной одеждой с длинным рукавом (желательно из плотного материала);
 - потренируйтесь контролировать отрезной диск насадки, который на излом крайне хрупкий;
 - отказаться от установки большого отрезного диска на бензопилу, мощность которой не превышает 1,5 кВт (движок будет справляться, но работа его будет на гране, что скажется на оборотах в виде провалов);
 - не используйте оборудование, у которого не был установлен защитный кожух;
 - эксплуатируйте пилу с насадкой только после проверки натяжения ремня меж двумя шкивами (возьмите ремень по центру, проделайте несколько движений, пытаясь провернуть его, его он провернется лишь на 90 градусов, то, регулировка правильная).
 
С помощью такого механизма можно соединить в одном устройстве целых два – бензиновую мощность основного агрегата – самой пилы, и множество преимуществ углошлифовальной машинки, известной больше как болгарка. Такая комбинация может стать чрезвычайно выгодной, если есть необходимость произвести режущие работы с различными материалами и конструкциями (не деревянными), а вблизи не оказывается источники электроснабжения, к которому можно было бы подсоединить обычную сетевую болгарку.
К выбору бензопилы для переделки стоит отнестись чрезвычайно серьёзно
Очень важно рассчитать мощность прибора и задачи, которые новое изделие должно будет решать. К примеру, бензопила «Урал» считается одной из самых мощных в своём классе
Использовать бензопилу «Урал» для переделки детского велосипеда в мопед крайне опасно. Слишком большие обороты могут просто привести к разрыву цепи и принести увечья. А вот огромным плюсом «Урала» является то, что бензопилы не сняты с производства и до сих пор в строю. Следовательно, запчасти на замену можно найти всегда.

 Старая, добрая бензопила «Дружба»
Это хоть и довольно старый, но проверенный «друг» всех мастеровитых людей. Эта пила, сколько десятилетий она не пылилась бы в гараже, всегда выручит в сложную минуту и станет помощников в решении большого количества важных задач. Мотор хоть и не отличается избытком «лошадок», но вполне потянет для переделки полезных в быту и на даче устройств.
Дополнительное оборудование для бензопилы
Насадочного станок для бензопилы Husqvarna, также для других электроинструментов, выпущенных под другой маркой, продается в большенном ассортименте на рынке. Отыскать такое устройство легко. Заморочек с установкой также не должно быть, так как в комплекте вы получаете аннотации, тщательно описывающие процесс установки. Для вас придется работать подольше и прибегать к неким хитростям, которые не описаны в аннотации, только если вы избрали неверное крепление для бензопилы.
важно! Не существует универсального крепления шлифовальной машины для модификации бензопилы. Покупая его, необходимо учесть вашу модель электроинструмента
В то же время имейте в виду, что избрать лучший вариант дополнительного оборудования для инструмента тяжело, так как производители насадок не всегда указывают в сопроводительном документе полный список совместимых моделей бензопил.
READ Как Верно Поставить Алмазный Диск На Болгарку
Насадка бур для бензопилы – особенности применения

Конечно, изготовить мотобур из бензопилы – процедура более увлекательная и бюджетная. Однако если нет желания тратить свое время и силы, то можно приобрести уже готовую насадку, которую можно устанавливать на бытовой инструмент в целях проделки отверстия в грунте или льду.
Такого рода готовая приставка к бензопиле значительно выигрывает в самодельного ледобура, так как она изготавливается из стали, которая в разы крепче фанеры. Она отличается меньшими размерами, ее проще транспортировать. Кроме того, благодаря применению технологии заводской заточки восстанавливать затупленные лезвия купленной насадки требуется гораздо реже.
Устанавливать и применять приставку-ледобур довольно просто. Для этого шина и пильная цепь бензопилы снимаются, а вместо них монтируется шнек с лезвиями. После этого вам останется установить нижнюю часть мотобура над местом, в котором нужно проделать отверстие, и запустить мотор агрегата.
Применение бензопилы
Такое устройство, как бензопила, применяется широко в домашнем хозяйстве и на больших предприятиях. Сложно найти инструмент, который будет соперничать с ней по функциональности. Возможности бензопилы делают ее незаменимой во многих сферах хозяйства.
Бензопила предназначается по своим функциям для распила древесины. Но есть и другие области применения. Такими считаются: резка металла, бурение скважин, выкачивание воды и др. Такое разнообразие использования можно практиковать благодаря наличию различных насадок и приспособлений.
Для выполнения различных работ бензопила имеет ряд свойств, способствующих применению ее в как многофункционального инструмента:
- Присутствие высокопроизводительного бензинового двигателя, который отличается еще к тому же своей компактностью.
 - Двигатель бензопилы не требует больших вложений.
 - Высокая производительность двигателя.
 - Бензопила может работать в трудных условиях.
 - Герметичность подачи топлива позволяет использовать бензопилу в различных положениях.
 - Устройство муфты сцепления защищает важные узлы инструмента от поломок и больших нагрузок.
 - Наличие удобного выходного вала позволяет подсоединить к нему дополнительное устройство.
 - Независимость применения пилы от условий: с ней можно работать где угодно.
 


















































